Внимание: Santreyd — информационный посредник. Товары представлены в рамках параллельного импорта. Изображения и описания носят информационный характер.
+7 (843) 212-61-98

MV Living Пристроенная наклонная пергола с регулируемыми планками Bioclimatiche sun-id-1344588

Артикул: sun-id-1344588 Бренд: MV Living Код: 101 344 588
0
Важная информация для покупателей:

Santreyd является информационным посредником. Товары представлены в рамках параллельного импорта. Изображения и описания носят информационный характер и могут отличаться от оригинала.

Информация о рекламодателе объявление № 1344588 от 24.12.2020 г. ООО "САН&nbps;&nbps;&nbps;
Сведения о рекламодателе предоставляется по запросу Правообладателя и/или контролирующих структур

Цена товара
Цена по запросу
Отправьте запрос, чтобы узнать актуальную цену и условия поставки
Под заказ Сроки поставки уточните у менеджера
Укажите количество:шт

Основные характеристики

Бренд
MV Living
Страна производителя
-
Гарантия
-
Размеры
-
Вес
-
Цвет
-
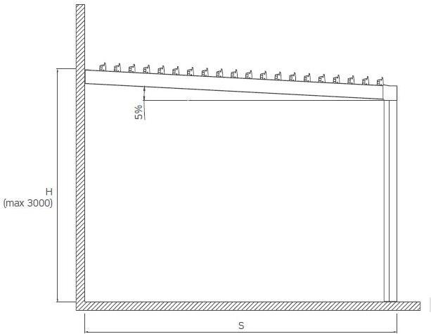
Bioroll - это навесная пергола с универсальной системой наружного покрытия, способная удовлетворить любые потребности в релаксации и защите. Bioroll позволяет управлять и фильтровать наиболее подходящее прохождение солнечного света в каждый момент дня, а также обеспечивает эффективную вентиляцию. естественный и воздухообмен. Когда ламели полностью закрыты, Bioroll защищает от дождя, способствуя потоку воды по внешним краям конструкции. Техническая информация: • Рейки 188,5 мм из окрашенного алюминия • Ориентация от 0 ° до 140 ° • Винты из нержавеющей стали, латуни или стали с обработкой GEOMET® 321 • Управление двигателем, включая блок управления и радиоуправление • Уклон для правильной работы и для расхода воды мин. 0% и макс. 5% (только версия с наклонной стенкой) • Трубчатая структура центральной части ламелей обеспечивает эффективное механическое сопротивление и простоту установки. • Устойчив к атмосферным воздействиям. • Простота установки • Сертификаты (EN 13659) • Ветровая стойкость: класс 4 • Снеговая нагрузка: 60 ​​кг / м2 Дополнительно: встроенная светодиодная система освещения. Цвета: СЕРИИ Белый Ral 9010 Цвет слоновой кости Ral 1013 ДОБАВКА 8% Мягкий белый / матовый Ral 9010 Мягкая слоновая кость / матовый Ral 1013 M2000 слюдяно-серый RAL 9006 серебро
Информация для покупателей:

Все описания товаров составлены на основе открытых данных и технической документации. Изображения товаров носят информационный характер и могут отличаться от оригинала.

Видеообзор товара

Посмотрите подробный обзор товара и его применение в интерьере

Артикул sun-id-1344588
Бренд MV Living
Категория Открытый; Беседки, беседки и зонтики; Навесы
Материалы Из алюминия
Размеры h макс 3000 мм

Отзывы покупателей

0 на основе 0 отзывов

Вопросы и ответы

Здесь вы можете найти ответы на часто задаваемые вопросы или задать свой вопрос о товаре.

Как можно оплатить заказ?

Оплата товаров производится по выставленому счету нашим менеджером, после оформления заказа. Доступные способы оплаты отображены в «Корзине» в момент оформления.

Отвечен 10 марта 2025

Условия доставки и оплаты

ДОСТАВКА ПО МОСКВЕ И ОБЛАСТИ:
Экспресс‑доставка за один день!

Успевайте оплатить заказ до 9:00 — и в тот же день, до 23:00, мы привезём его при наличии на складе.

Стоимость — 6 500 ₽. Быстро, чётко, без ожидания.

ДОСТАВКА ПО ВСЕЙ РОССИИ
Во все регионы круглый год

Надёжные транспортные компании — СДЭК, Деловые Линии, ПЭК, Байкал Сервис — доставят ваш заказ в любой регион.

Удобные варианты оплаты доставки:

Напрямую перевозчику — по отдельному счёту от ТК.

Через нас — мы включим предварительную стоимость доставки в общий счёт. После упаковки и взвешивания, если тариф изменится, разницу вы доплачиваете напрямую транспортной компании — прозрачно и без скрытых переплат.

Стоимость доставки и упаковки оплачивает покупатель. Сроки — от 10 до 30 календарных дней (зависят от правил выбранной ТК).

СПОСОБЫ ОПЛАТЫ:
QR, картой, переводом

Выбирайте то, что удобно:

  • Онлайн банковской картой — через защищённый платёжный шлюз
  • По счёту — банковский перевод по реквизитам
  • По QR‑коду — быстро и без лишних действий

Оплата наличными и при получении недоступна.

Все заказы принимаются только при 100% предоплате в соответствии с условиями договора.

Гарантия на товар

Гарантия 12 месяцев

MV Living Пристроенная наклонная пергола с регулируемыми планками Bioclimatiche sun-id-1344588 предоставляется с гарантией 12 месяцев с момента покупки.

Условия гарантии:
  • Гарантия распространяется на производственные дефекты
  • Гарантийный талон должен быть заполнен и заверен печатью продавца
  • Товар должен использоваться по назначению и в соответствии с инструкцией
  • Гарантия не распространяется на повреждения, вызванные неправильной установкой или эксплуатацией
Важная информация:

Гарантийные обязательства выполняются в рамках законодательства РФ о параллельном импорте. Для предъявления претензий по гарантии необходимо обратиться к продавцу.

Цена по запросу
Товар: "Обои виниловые бежевые 0.70 м 919653 RASCH Safrano" добавлен в корзину
Оформить заказ
Товар добавлен в корзину
Оформить заказ
Ваша оценка учтена
Общая оценка товара: 3.5
Вывод сообщения о неверном действии со стороны пользователя
Сообщение об успешном действии: отправлена форма, успешный вход и т.д.
Сообщение об успешном действии: отправлена форма, успешный вход и т.д.